This design addresses the issue of climate disasters leading to the more frequently occurring extreme weather, offering a simple solution for people to grow their food at home. Extreme weather, such as flooding, storms, drought and wildfire, can impact food production significantly, leading to the possibility of crop failure. As the population grows, cities expand, and farmlands disappear, finding a method to fulfil the increasing demand for food while protecting natural habitats is essential. The hydroponic system is a simple system that only requires water and nutrition, which is easy to build and care for compared to other small-scale food-growing methods. This simple plant shelf will form a closed system using solar panels for powering plant lights and using nutrition, perhaps from fish, letting people grow their food anywhere they want. The plants also play a role in air purification, decreasing the carbon footprint and ensuring food safety.
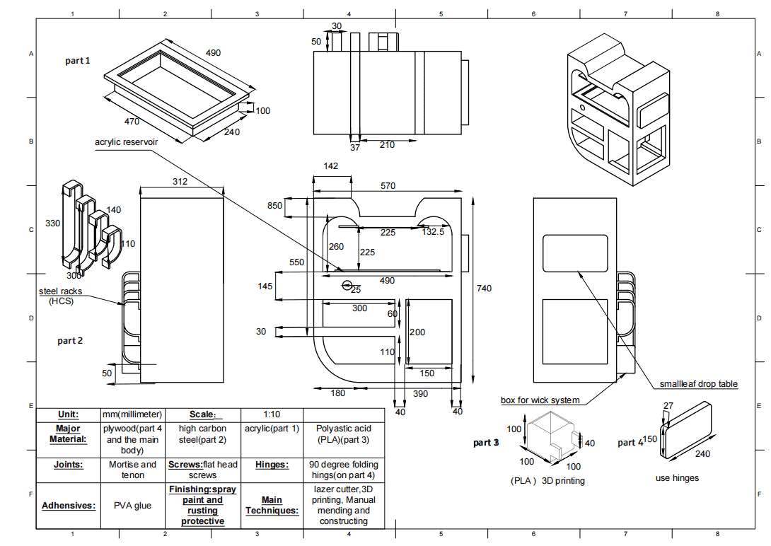
The overall structure of the plant shelf uses simple mortise and tenon, making it easy to transfer and allowing personalization of the shelf’s function by using different board options, similar to Legos. Solar power from solar panels provides energy for LED plant lights and the oxygen pump. The hydroponic system uses the deepwater culture as the main method, so it has a large reservoir for storing water and holding plants. This system only requires changing water and adding nutrition, which is easy to learn and convenient to take care of. The shelf’s design includes the element of nature, which brings a relationship between humans and the natural environment; in this case, it is an owl shape with the colour of night. As a shelf, it can hold the entire hydroponic system and be used to store items.
Highlights:
1. hydroponic system for food production with the possible option of aquaponic
The complete deepwater culture hydroponic system needs small pots for holding plant seeds, a large water reservoir, and an oxygen pump in the water to provide oxygen for the plant’s root system. This shelf has a space for a waterproof reservoir, a plastic box in this case. The pots and materials for plant seeds to grow are common materials, which can be any holder that allows water to touch the plant root while not submerging everything inside. The source of nutrition is an essential part of the system, which can either be bought as a product or use water from aquatic animals, which can be a small fish pot, forming a complete nitrogen cycle. This shelf design consists of a place to hold a fish pot, which may create a closed system if the citizens want to simultaneously have aquatic creatures and healthy green food.
2.optional places for climbers(plants with veins)
Some vegetables, such as beans, have long veins, which require some holder to climb on. The side of the shelf has some metal strips that allow plants to climb, with a small plastic reservoir at the bottom.
3. solar panels generate energy for plant lights and water pump
The energy required for the oxygen pump and plant lights is essential, which can be acquired from the solar panels. It will store additional power in the battery and be used if needed. I designed the solar panel as a movable part of the shelf so that the user can change the angle according to the position of the light sources. At the same time, LED plant lights themselves have many benefits.
In terms of manufacturing, the overall parts of the shelf are made from simple laser cutting of plywood. The plastic reservoirs are made with 3D printing(small side reservoir) and vacuum forming technologies(large reservoir). The metal strips are stainless steel, making them resistant to water. In general, the manufacturing and construction process is simple. With the support of technology, every single piece of wood board can be designed accurately, making it easy to personalise.
The materials are safe, the shelf is strong and sturdy, and sharp edges are avoided. From the manufacturing technology and the material decisions, this shelf’s price will not be extremely high, which makes it a suitable adaptation tool for food production at home.
To sum up, this hydroponic shelf is a closed system that only requires fewer human demands. The system itself can operate almost anywhere with the light. If the solar energy runs out, the battery can connect to any power source that still provides power for the light and the oxygen pump. I believe its convenience and multifunctional properties will make it a suitable adaptation method when food production is affected by extreme weather caused by climate changes.






